Где в 2015 году в Чернигове будут праздновать новоселье
По состоянию на 1 октября 2014 года на квартирном учете в исполнительном комитете Черниговского городского совета состояло 6478 семей. Кроме того, самостоятельный квартирный учет ведут 65 предприятий и учреждений города. На этом учете состоит еще 2622 семьи. Можно предположить, что количество «внеочередников» на квартучете возрастет в связи с увеличением количества участников АТО, особенно, после прохождения очередной волны мобилизации. В то же время реальных подвижек в городской квартирной очереди не наблюдается – государство практически не выделяет денег на покупку квартир своим гражданам. А городской бюджет не может позволить себе такую роскошь.
Тем не менее, Черниговским городским советом в течение января-сентября 2014 года был изменен статус 73 помещений: из служебных и общежитий – в жилые. Выделено жилье и выданы ордера 28 гражданам, которые находились на квартирном учете, как по месту работы, так и по месту жительства. Из них пять ордеров выдано социально-незащищенным жителям города, а именно: три ордера – инвалидам войны, один – многодетной семье и один – инвалиду войны – участнику боевых действий в зарубежных странах.
В жилом фонде социального назначения находится 30 жилых помещений, в фонде жилья для временного проживания – 18 квартир, которые заселены в установленном законодательством порядке соответствующей категорией граждан. С начала года такое жилье получили девять детей-сирот, двое инвалидов и один гражданин пожилого возраста.
Что построено за 2014 год
По официальным данным по состоянию на первое октября 2014 года в Чернигове было введено в эксплуатацию 51,4 тыс. м2 жилья, из них 40,7 тыс. м2 – многоквартирного жилья и 10,7 тыс. м2 – индивидуального. До конца года был запланирован ввод еще около 34,4 тыс. м2 жилья. По сравнению с 2013 годом в 2014-м введено в эксплуатацию жилья меньше почти на 11%. По официально неподтвержденным данным суммарная площадь введенного в эксплуатацию жилья составляет 85,8 тыс. м2. Как считает заместитель городского головы по вопросам строительства Виктор Бережной, при сложной военно-политической обстановке в Украине, для черниговских строителей, несмотря ни на что, минувший год был удачным.
Если говорить о многоквартирном жилье, то в 2014 году в эксплуатацию было сдано немало объектов:
– 44-квартирный жилой дом по ул. Стрелецкая, 22,

– 119-квартирный жилой дом по ул. Толстого, 125-а,
– 26-квартирный жилой дом по ул. Красносельского, 49,

– 178-квартирный жилой дом (третья очередь строительства группы многоквартирных жилых домов с объектами общественного назначения) по ул. Старобелоусская, 61-б,

– 120-квартирный жилой дом с объектами соц. инфраструктуры по ул. Попова, 31-б;



– 53- квартирный жилой дом по ул. Петровского, 55;
– 72-квартирный жилой дом с объектами социально-бытового назначения по ул. 1-го Мая, 195-а;

– 117-квартирный жилой дом по ул. Курсанта Еськова, 14-б.

По заказу управления капитального строительства городского совета в минувшем году за счет средств инвесторов завершено строительство второй очереди жилого дома № 14 и второй очереди жилого дома № 7 (строительные адреса) в первом микрорайоне «Масаны» общей площадью 4760 кв. м., четвертой очереди жилого дома по ул. Победы, 119 общей площадью 7455,2 кв. м.

Вот так сегодня выглядит диаграмма эффективности работы черниговских строителей за последние 13 лет.
2015-й год обещает быть не менее продуктивным
Несмотря на сложную экономическую ситуацию, стремительный рост курса доллара, в 2015 году за счет различных источников финансирования планируется ввести в эксплуатацию 87 615,55 м2 общей площади жилья, что на 2,1% больше, чем в 2014 году. Объемы инвестиций в жилищное строительство, с учетом прогнозируемого индекса цен капитальных инвестиций на 2015 год, уменьшатся по сравнению с 2014 годом на 2,6% и составят 150,0 млн. грн.
При этом по планам Черниговского городского совета в нынешнем году планируется сдать в эксплуатацию 13 многоквартирных домов общей площадью 75 615,6 м2 и только 12 000 м2 индивидуального жилья.
• Практически за год компания «УкрСиверБуд» планирует завершить строительство 80-квартирного жилого дома общей площадью 6416 м2 на перекрестке улиц Андрусенко-Красносельского в районе Масаны. Начало строительства заявлено на 2015 год, а сдача объекта на 4-й квартал того же 2015 года. Заказчиком строительства выступает управление капитального строительства Черниговского городского совета.
• Также к 4-му кварталу 2015 года планируется сдача 72-квартирного жилого дома общей площадью 3690 м2 по проспекту Мира, 269. И здесь заказчиком строительства выступает управление капитального строительства Черниговского городского совета. Генеральным подрядчиком строительства выступает компания ООО «Житлобудсервис».

• Еще один объект в исполнении ООО «Житлобудсервис» и управления капитального строительства Черниговского городского совета планируется к сдаче в центре Чернигова. Это 5-я очередь (4-я секция) группы жилых домов с объектами социального назначения по адресу: проспект Победы, 119. Объект планируют завершить к 3-му кварталу 2015 года. В нем будет 66 квартир. Общая площадь объекта – 4036 м2.
В 2015 году по заказу КП «Черниговбудинвест» в Чернигове планируется завершить строительство пяти жилых многоквартирных зданий:


• 33-квартирный жилой дом общей площадью в 2570 м2 №6 по ул. Курсанта Еськова (строительный адрес) ООО «Домен-Буд» планирует сдать во 2-м квартале 2015 года.

• К 3-му кварталу 2015 года обещают к сдаче 40-квартрный жилой дом №7 по ул. Курсанта Еськова (строительный адрес). Генеральный подрядчик строительства – ООО «Домен-Буд». Общая площадь объекта дома №7 будет чуть больше, чем дома №6 – 2593 м2.


• В 1-м квартале 2015 года наконец-то обещают завершить строительство, ставшее легендой Чернигова – дом №27 по ул. Войкова. Этот дом с офисными помещениями на 1-м и 2-м этажах начали строить еще в 2007 году, так сказать, еще до кризиса 2009 года. Но, к сожалению, так и не смогли завершить в установленные сроки. Потом, практически каждый год, обещали завершение строительства, но все как-то не срасталось. В доме – 168 квартир. Общая площадь объекта – 9994 м2. Генеральный подрядчик строительства – ООО «Житлобудсервис».


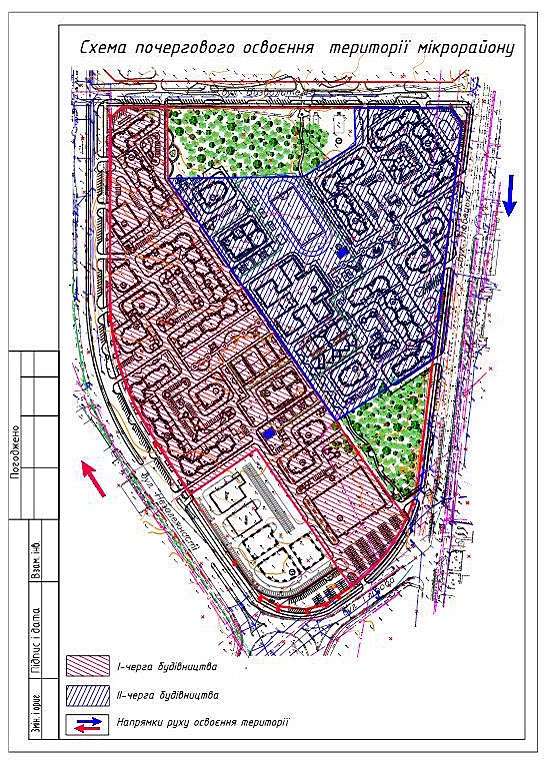
Традиционно активная застройка ведется в районе Масанов. В 2014 году начали осваивать 3-й микрорайон Масаны. На макете мы можем увидеть, каким будет этот микрорайон в будущем. На схеме показана очередность освоения территории микрорайона Масаны-3. В 2015 году заказчик строительства КП «Черниговбудинвест» в содружестве с генподрядчиком – ООО «Основа-Буд-7» планируют завершить строительство двух многоквартирных домов в этом районе Чернигова. Квартиры в этих домах оборудованы автономными источниками теплоснабжения (АИТ).




• 98-квартирный жилой дом №8/1 общей площадью 5964 м2 планируется к сдаче в районе Масаны-3 в 4-м квартале 2015 года.
• Рядом с ним строится дом №8/2 на 42 квартиры общей площадью 2537 м2. Завершение этого объекта также планируется в 4-м квартале 2015 года.


• По заказу ЧП «Гелиодор» к сдаче в 3-м квартале 2015 года планируется 4 секция (3 очередь) многоквартирного жилого дома по ул. Горького, 51. Строительство объекта ведет ООО «Полесьеевробуд». К сдаче планируется 71 квартира. Объект – общей площадью в 3900 м2.

• Строительство доступного жилья – многоэтажного 80-квартирного жилого дома №5 по ул. 1 Мая (строительный адрес) с обустройством АИТ в каждой квартире со встроенно-пристроенными объектами социально-бытового назначения и размещением детской школы искусств на арендованном участке по заказу ООО «Північне будівництво» ведет ДП «УкрСиверБуд» ЗАО «ДСК». Общая площадь этого объекта составит 4292,14 м2. Строительство объекта было начато в 2013 году. Срок окончания строительства – октябрь 2015 года.
• 60-квартирный жилой дом №6 по ул. 1 Мая (строительный адрес) с обустройством АИТ в каждой квартире и размещением учреждения охраны здоровья на арендованном участке общей площадью 3966,43 м2 ООО «Північне будівництво» и ДП «УкрСиверБуд» ЗАО «ДСК» также планируют к сдаче в октябре 2015 года.
• Третьим объектом, который в октябре нынешнего года планируют к сдаче ООО «Північне будівництво» и ДП «УкрСиверБуд» ЗАО «ДСК» станет 140-квартирный жилой дома №2 по ул. 1 Мая (строительный адрес) с обустройством АИТ в каждой квартире и размещением на арендованном участке художественной школы. Площадь этого объекта – 8118,88 м2.



Заказчиком строительства еще двух многоквартирных домов в Чернигове выступил Черниговский государственный технологический университет Министерства образования и науки молодежи и спорта Украины.
• Строительство многоэтажного 132-квартирного жилого дома №1 по ул. Шевченко, 97 (строительный адрес) с обустройством АИТ в каждой квартире со встроенно-пристроенными объектами социально-бытового назначения, учебного назначения, пункта медицинского обследования общей площадью 10523,7 м2 ведет ДП «УкрСиверБуд» ЗАО «ДСК». Окончание строительства запланировано на август 2015 года.
• Еще один объект – по соседству. Это – 88-квартирный жилой дом №2 по ул. Шевченко, 97 (строительный адрес) с обустройством АИТ в каждой квартире со встроенно-пристроенными объектами социально-бытового назначения: учреждения повышения квалификации сотрудников Черниговского государственного технологического университета, магазинами продовольственных и непродовольственных товаров, и подземным паркингом. Его строительство ДП «УкрСиверБуд» ЗАО «ДСК» планирует завершить в декабре 2015 года. Здание будет иметь общую площадь в 7014,4 м2.
Игорь Грищенко
Хочете отримувати головне в месенджер? Підписуйтеся на наш
Telegram.




